
作者 | 王忠渊,项炜,王忠淼,杨青锋,刘金伟,雷洪,张鑫,杨定成,闫文举,雷磊
摘要:在工学领域,膜片冲刷试验对高温高压超快脉冲控制阀的需求日益迫切。本研究旨在研制满足特定工况性能要求且填补市场空白的高温高压超快脉冲控制阀。该控制阀以无极调速电机带动阀杆、阀瓣组合体高速旋转实现气流通断为总体设计思路,利用阀瓣和阀座孔重合度变化达到60 Hz脉冲效果。在研制过程中,针对密封副的间隙调节和泄漏率问题,设计了螺纹旋转微调结构和步进电机智能控制系统;针对高温环境下的冷却结构难题,设计了三层四体加旋转的阀杆冷却和紧凑型阀座冷却结构。应用有限元分析法对阀芯阀杆组件进行应力场和温度场分析。经试验验证,该控制阀性能符合设计要求,未来有望在航空航天、石油化工等领域广泛应用。
关键词: 超快脉冲;泄漏率;智能控制;传感器
基金项目: 温州重大科技专项(ZZG2024002)
1 概述
超快脉冲阀是一种能够在短时间内实现高频开关动作的流体控制装置,膜片冲刷试验作为现代工业领域中评估材料性能的重要手段,广泛应用于航空航天、能源化工等关键领域。在高温高压环境下,膜片的耐久性与可靠性直接决定了系统的运行效率与安全性。然而,当前类似试验对高温高压超快脉冲控制阀的需求极为迫切,传统阀门在极端工况下往往难以满足快速响应、高精度控制以及长期稳定运行的要求。特别是在脉冲气体冲刷测试装置中,阀门不仅需要承受高温高压的工作环境,还需实现毫秒级的开关循环,以确保试验数据的准确性和可重复性。因此,开展高温高压超快脉冲控制阀的研究具有重要的理论价值和实际意义。从工学角度来看,该研究不仅能够推动流体控制技术的发展,还为极端工况下的设备设计提供了新的思路与方法。
近年来,随着工业技术的不断进步,对高温高压阀门的要求日益提高。例如,在航空航天领域,高温高压特殊阀门被广泛应用于火箭发动机地面试验和卫星热控系统;在石油化工行业,高温高压蒸汽放空阀则是保障空分装置长周期稳定运行的关键设备。然而,现有阀门技术在面对超快脉冲控制需求时仍存在诸多不足,如密封性能难以兼顾高温与高速旋转、冷却结构设计复杂且效率低下等问题。这些问题的存在使得开发一种新型高温高压超快脉冲控制阀成为亟待解决的技术难题。本研究旨在通过创新性设计与试验验证,为相关领域提供可靠的技术支持,同时填补国内外在该领域的空白。
本研究的主要目标是研制一种能够满足特定工况需求的高温高压超快脉冲控制阀,具体包括以下几个方面:首先,通过优化阀门结构设计,利用高速旋转的阀瓣上的8个流道孔和固定不动的阀座上的一个流道孔的重合度,实现60 Hz高频脉冲气流的精确控制,以满足膜片冲刷试验对气流稳定性和响应速度的要求;其次,针对高温高压环境下的密封问题,开发新型密封材料与结构,确保阀门在全关状态下的泄漏率低于用户要求的5‰;此外,通过设计高效的冷却与散热机制,延长阀门在高温环境下的使用寿命,降低因热应力导致的故障风险;最后,通过性能试验验证,证明本研究所研制的控制阀能够在极端工况下保持稳定的工作状态。
为了达成上述目标,本研究将重点攻克以下几个关键技术难点:一是选择合适的密封副材料,以平衡硬度、耐磨性与耐高温性之间的矛盾,高温环境下密封材料的氧化退化问题需重点关注,不同等级石墨材料的高温性能差异可为密封副选材提供参考;二是设计紧凑且高效的冷却结构,以应对高温环境对阀门性能的影响,新型冷却流道的优化设计可进一步提升换热效率;三是解决阀杆高速旋转时的填料函密封问题,减少摩擦与泄漏风险,高速旋转工况下的动密封技术研究可为该难题提供解决方案;四是针对脉冲气流频率、阀门泄漏率和流道的压力损失、温度损失设计智能控制系统,基于PLC与传感器的协同控制策略可提升控制精度;五是对阀门的主体进行应力场、温度场热固耦合的有限元分析,先进的数值模拟方法可提高应力与温度分布计算的准确性。通过对这些问题的深入研究与解决,本研究期望为高温高压超快脉冲控制阀的设计与应用提供科学依据和技术支持。
2 阀门的特殊结构设计
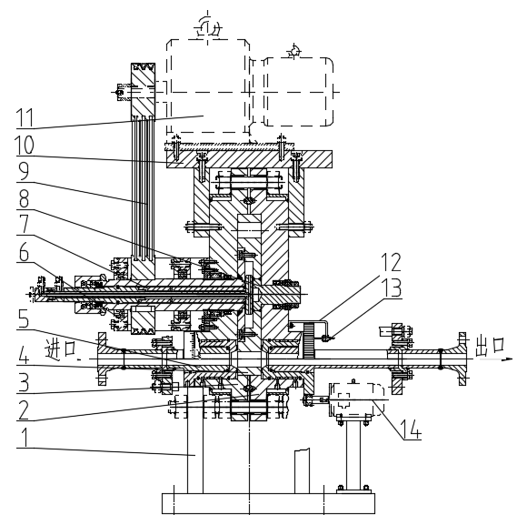
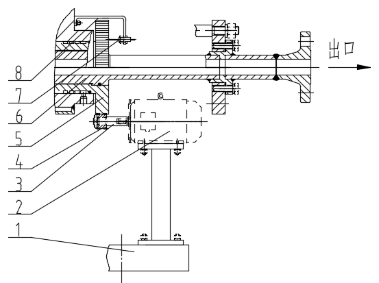
高温高压超快脉冲控制阀主要包括阀体、阀盖、阀瓣、密封微调组合件(阀座)、支架、上阀杆组合件、下阀杆组合件、安装基座、电机安装架、无极调速电机等,其结构详见图1。

1.安装基座 2.阀体 3.阀盖 4.阀瓣 5.密封微调组合件 6.支架 7.上阀杆组合件 8.下阀杆组合件 9.皮带 10.电机安装架 11.电机 12.传感器支架 13.位移传感器 14.步进电机
图1 高温高压超快脉冲控制阀结构图
2.1 脉冲气流结构
高温高压气流实现每秒开关60次(60 Hz)是空前的,本设计采用无极调速电机,电机型号YCT160-4B,调速范围125~1230 r/min,本项目速度选择450 r/min。阀瓣圆周均布8个流道通孔,见图2。按照客户要求,介质为高温(1000 K),高压(10 MPa),流量为1 kg/s,计算流量体积为20.79 L/s(dm³/s)。按照高温高压气体的正常流速计算流道通径(为30 mm),阀瓣孔设计为弧方形,便于气流通断。上下阀座设计为密封微调组合件,阀瓣随阀杆高速旋转,阀座固定不动,当阀瓣孔和阀座孔二者重合时,气流通,阀门开启;当二者不重合时,阀门关闭。阀瓣每个方孔圆弧周向为10.7°,实体为34.3°,气流通断比为1:3.2,脉冲效果理想。

图2 阀瓣通气孔排布图
2.2 密封面精准调节机构
本产品客户要求介质泄漏率≤5‰,由于介质温度高,阀瓣和阀座之间密封副只能采用金属硬质材料,橡胶和氟塑料制品均不能满足高温要求。再者,阀瓣高速旋转,阀座固定不动,二者如果接触,不仅发出摩擦噪声,而且产生火花,带来安全隐患,因此密封副之间要留有一定的间隙。间隙的大小决定了泄漏率,为了满足泄漏量≤5‰,通过计算,二者的间隙只能小于0.04 mm(头发丝直径为0.06 mm),需设计密封面精准调节机构。
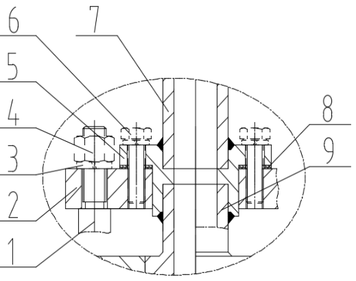
本调节机构设计为手动调节机构和智能控制调节机构两种。其中,手动调节机构包括微调机构和固定安装机构,微调机构包括阀盖、阀瓣、流道管、旋转套和旋转套外侧对称安装的紧定螺钉,见图3;固定安装机构包括支撑杆、连接板、六角螺母、弹簧垫圈、套管垫、上流道管、调整垫片、流道管等,见图4。微调的关键机构是旋转套和流道管之间通过M65×2螺纹连接,流道管通过安装机构固定不动,旋转套通过旋转螺纹实现上下移动,旋转套的外圆圆周刻有100个均布刻度,每格的移动距离为0.02 mm。调整前,先通过安装架连接板上面的调整垫进行粗调,随后用旋转套进行精调。精调的方法是:先旋动旋转套,让旋转套下端平面接触阀瓣上表面,记好刻度,随后旋动旋转套,使其脱离阀瓣平面,再微调旋转套,使刻度较前减少2格,固紧定位螺钉,以此保证上旋转套(上阀座)与阀瓣上平面的间隙为0.04 mm。下阀座和阀瓣下平面的微调结构采用智能控制方法,智能位移调节机构的优化设计可进一步提升间隙控制的精准度。

1.阀瓣 2.旋转套 3.阀盖 4.方牙螺旋槽 5.流道管 6.O形密封圈 7.紧定螺钉
图3 阀座间隙调节机构

1.支撑杆 2.连接板 3.弹簧垫圈 4.六角螺母 5.套管座 6.六角头螺栓 7.上流道管 8.调整垫片 9.流道管
图4 流道管固定架
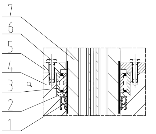
2.3 阀座(旋转套)冷却结构
阀座(旋转套)通过螺纹和流道管连接,流道管内的气体温度为1000 K,为了防止高温气体外漏,在旋转套和流道管的上、下部位均安装氟橡胶材质的O形密封圈。为了保证密封圈正常工作,必须对阀座进行水冷却。由于位置所限,在阀座外圆巧妙地设计了方牙螺旋槽水冷却结构(见图3)。方牙螺旋槽螺距为10 mm,槽深为5 mm。借助阀盖冷却水进水接头,分出一部分冷却水流进阀座螺旋槽,随后从螺旋槽上端出口流出,达到理想的冷却效果。螺旋槽冷却结构的换热效率可通过数值模拟方法进行优化,进一步提升高温工况下的冷却可靠性。
2.4 上阀杆和阀瓣组合体的冷却结构
上阀杆和阀瓣组合件主要由以下部件组成:阀瓣体、阀瓣盖、上阀杆、上堵头、O形密封圈、阀杆芯上端杆、阀杆芯下端杆、进水管、喷水盘、下定位轴,如图1、图5和图6所示。冷却水从上堵头的进水口流入,沿进水管流进喷水盘,从喷水盘的四周通道进入阀瓣体内腔,吸热后从上阀杆内孔和阀杆芯下端杆的外圆间隙处向上流动;阀杆芯下端杆的上部圆周径向开有4个小孔,冷却水从这4个小孔进入进水管的外圆和阀杆芯下端杆及阀杆芯上端杆的内孔间隙处向上流动,直至流到阀杆芯上端杆顶部的出水口,以上是整个流通渠道的介绍。
总体而言,冷却结构是三层四体加旋转结构。所述三层指进水管、阀杆芯、上阀杆;四体指进水管、上阀杆、阀杆芯上端杆和阀杆芯下端杆,再加喷水盘;旋转指阀杆及阀瓣体高速旋转,而阀杆芯、进水管和喷水盘等不旋转。机构中采用单向推力球轴承2只,深沟向心球轴承5只;选用耐温性最好的全氟醚橡胶唇形密封圈2只,O形密封圈10只。该设计结构复杂,为后续加工、安装、试验带来极大麻烦。高温工况下密封圈的老化特性对阀门可靠性影响显著,新型耐温密封材料的应用可进一步延长阀门使用寿命。

1.接头螺母 2.连接帽 3.圆螺母 4.单向推力球轴承 5.旋转轴唇形密封圈(FB型) 6.O形圈 7.圆螺母 8.上阀杆 9.阀杆芯组合件 10.挡圈
图5 组合阀杆结构示意图

1.连接堵头 2.阀杆芯上端杆 3.阀杆芯下端杆 4.进水管 5.喷水盘 6.下定位轴
图6 阀杆芯组合件结构示意图
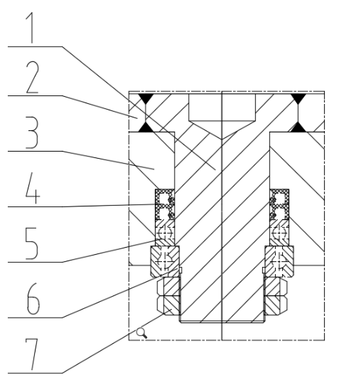
2.5 阀杆填料函无摩擦结构
阀杆要带动阀瓣高速旋转,与其他通用阀门(如闸阀、截止阀、球阀、蝶阀等)不同,其他阀门未见过高速旋转阀杆,其填料函结构相对简单,只有填料、填料垫、填料压盖;超高压阀门的填料函中间增加隔环,便于填注密封脂。本阀门由于阀杆做高速旋转,填料函承担的不是静密封,而是动密封。动密封不仅密封困难,而且填料磨损严重。为了解决这一难题,本项目在阀杆和填料函之间设计了滚针轴承,见图7。由于滚针轴承结构紧凑,占据空间小,此处安装滚针轴承是最佳选择。滚针轴承的内圈随阀杆高速旋转,外圈与填料函接触,密封可靠且无摩擦,开关动作轻松省力;同时,下阀杆设计了单向推力球轴承和深沟球轴承(见图8),如此可减少40%的转动力矩。高速旋转轴的密封磨损机理研究可为填料函结构的优化提供理论支撑。

1.旋转轴唇形密封圈(FB型) 2.垫片 3.单列滚针轴承 4.阀盖 5.轴承压板 6.六角头螺栓 7.阀杆
图7 上阀杆下部结构示意图

1.下阀杆 2.阀瓣 3.阀体 4.旋转轴唇形密封圈(FB型) 5.单向推力球轴承 6.深沟球轴承 7.锁紧圆螺母
图8 下阀杆装配示意图
3 智能控制系统
随着工业自动化水平的提高,超快脉冲控制阀的智能化发展逐渐成为研究热点。
3.1 脉冲气流频率的智能控制
脉冲气流频率是高温高压超快脉冲控制阀的主要参数,在设计上其要完成远程自动控制。具体实施方法是:在与阀瓣同步运行的下阀杆外圆安装一只编码器,实时监控阀瓣转速,因阀瓣圆周设计8个流道孔,脉冲气流的频率和阀瓣转速之比为1:8,如果要求脉冲频率为60 Hz,则编码器的显示数值应为60÷8=7.5 r/s。电机转速根据传动比计算,为450 r/min。假如出现编码器实测数据为7 r/s,即脉冲气流频率为7×8=56 Hz,则未达到试验数值,说明无极调速的电机转速降低了,此时编码器会向阀门的PLC系统发出指令,PLC系统通过运算,自动调整电机转速达到450 r/min。基于编码器与PLC的转速闭环控制策略可有效提升脉冲频率的稳定性,相关智能控制算法的优化可进一步提高响应速度。
3.2 阀门泄漏率的智能控制
由于高温高压介质,阀瓣、阀座密封副只能选用金属密封材料;同时,考虑密封副相对运动速度过快,线速度达9.18 m/s,若接触摩擦,则会发出巨大噪声和火花,安全风险较大,因此密封副之间必须留有间隙。间隙的大小直接影响泄漏率,用户要求泄漏率≤5‰,必须对间隙精确控制。上文提及通过螺纹传动和旋转刻度盘微调密封间隙,本节以流量计实测数据为依据,介绍智能控制密封副的间隙,其结构如图9所示。具体控制方法为:在下阀座安装位移传感器,由微调步进电机控制阀座移动尺寸;当阀门开始调试时,在出口端安装流量计,使阀瓣处于关闭状态,此时密封副的泄漏量由流量计显示。阀门的负载流量为1 kg/s,在1000 K和10 MPa压力下的体积流量为20.79 L/s,即20.79 dm³/s。5‰的允许泄漏量为20.79×5‰=0.104 L/s,将流量计实时控制测量的数值发送到PLC控制中心,控制中心通过和泄漏允许值进行对比,发出指令给位移传感器和微型步进电机,微型步进电机通过齿轮传动,调整阀瓣阀座之间的间隙,改变泄漏率,直到满意为止。

安装基座 2.步进电机 3.传动箱 4.齿轮 5.旋转套 6.流道管 7.位移传感器 8.传感器支架
图9 智能位移调节机构示意图
3.3 流道压力损失和温度损失的智慧控制
为实现流道压力损失与温度损失的智能动态补偿与优化,本文构建了基于实时数据融合与自主决策的智慧控制系统,智慧控制流程图如图10所示。该系统集成高精度差压变送器(精度优于±0.1%FS),跨接于阀门进出口以实时捕获流道压差动态;同时,依托内嵌工业PLC实现毫秒级数据处理与决策。执行机构通过接口联动比例积分电动调节阀调控冷却水流量及电控增压泵补偿上游气源压力,形成闭环执行单元。软件层面,通过构建阀门流道数字孪生体,嵌入简化计算流体动力学算法,结合实时工况参数,在线生成理论压损/温损基准曲线。
控制核心采用自适应PID算法,当实时监测数据偏离阈值时,系统自动生成补偿指令并驱动执行机构。例如,检测到温升骤升时,即刻调节冷却水阀开度增幅5%~10%,使温度在3 s内恢复至±5 K允许波动范围内。同步运行的预测性维护引擎基于长短期记忆神经网络(LSTM)模型分析历史数据,预警密封副磨损或流道堵塞风险。该系统形成“感知-决策-执行-学习”闭环,通过动态优化流阻特性与热管理效能,显著提升了阀门在变工况下的稳定性与能效利用率,实现了从被动监测到主动调控的跨越。数字孪生技术在阀门流道设计与优化中的应用可进一步提升系统的控制精度与可靠性。

图10 智慧控制流程图
3.4 试验验证
为了验证阀门的泄漏率是否满足客户要求,专门设计了泄漏率测试装置,见图11。该装置主要由气源、开关球阀、压力表、脉冲阀及流量计组成。气源提供常温3 MPa干燥空气,经开关球阀送入脉冲阀,脉冲阀处于关闭状态,在出口处设置压力表和流量计检测阀门的泄漏率。

1.开关球阀 2.压力表 3.高温脉冲阀 4.压力表 5.流量计
图11 阀门泄漏率测试装置
为了验证阀门脉冲气流的频率,本文进行了开机冲气试验,详见图12。

图12 脉冲阀出口气流喷出视图
经实测,阀门关闭状态下的泄漏率为3‰,远低于客户要求的泄漏率≤5‰;脉冲气流频率实测值在60 Hz±0.5 Hz,多组重复测试数据稳定,无明显波动,充分验证了该阀门结构的密封可靠性与脉冲气流控制精度,各项指标均满足客户使用要求。
4 有限元分析
高温高压超快脉冲阀结构复杂且温差较大,采用瞬态温度场与热弹塑性分析相结合的热固耦合方法,分析阀芯阀杆组件与阀体的温度场和应力场。阀体及阀芯、阀杆组件材料均为F347H,设计温度下其材料泊松比为0.31,弹性模量为140GPa,屈服强度为28MPa。
4.1 边界条件
4.1.1 换热系数及辐射效率
为了保证阀门的正常运行,通过冷却水对阀芯阀杆组件及阀体进行冷却换热以降低热冲击。
(1)阀芯阀杆组件的对流换热系数
对流换热系数根据Dittus-Boelter关联式计算。高温氩气流量Q=1 kg/s,密度ρ=46.88 kg/m3,当量直径d=30 mm,运动黏度v=1.198 mm2/s,普朗特数Pr=0.662,由此可得雷诺数Re=755691,从而换热系数h1=1024 W/(m2·K);设计冷却水流速v=1.5 m/s,当量直径d=10.5 mm,运动黏度v=0.659 mm2/s,普朗特数Pr=4.31,由此可得雷诺数Re=24074,从而换热系数h2=132 W/(m2·K)。
(2)阀体的对流换热系数
设计冷却水流速v=1.5 m/s,当量直径d=13.75 mm,运动黏度v=0.659 mm2/s,普朗特数Pr=4.31,可由此得雷诺数Re=31297,从而换热系数h3=162 W/(m2·K)。
(3)辐射效率
金属的辐射效率与表面粗糙度、氧化程度和温度等因素相关。一般来说,金属的辐射效率随着温度的升高而升高,故取与高温气体接触的材料辐射效率为0.8。
4.1.2 温度场边界条件
(1)将阀门内高温气体流过的区域表面设置换热系数h1,温度为1000 K,高温辐射效率为0.8。
(2)将阀芯内部冷却水流过的区域表面设置对流换热系数h2,温度为300 K;将阀杆内部冷却水流过的区域表面设置对流换热系数h3,温度为300 K。
(3)将阀门与环境的换热系数设置为15 W/(m2·K)。
4.1.3 应力场边界条件
对高温气体流过的区域施加内压10 MPa,对冷却水流过的区域施加内压0.3 MPa。
对上下阀杆装有轴承处施加无摩擦约束,对装有旋转轴唇形密封圈处施加载荷20 N·m,对装有O形圈处施加载荷10 N·m,对键槽与电机连接处施加固定约束。
4.2 阀芯阀杆组件温度及应力分布
阀芯阀杆组件温度分布受高温气体热冲击与辐射、与其他零件之间固体导热及内部冷却水对流换热的影响,通过有限元计算得到阀芯阀杆组件的温度分布,如图13所示。阀瓣通气孔受高温气体热冲击与辐射作用,温度可达711 ℃;在内部冷却水对流换热作用下,上下阀杆温度沿轴向逐步降低至20 ℃,阀芯阀杆组件温差较大。

图13 阀芯阀杆组件温度分布云图
阀芯阀杆组件由温差引起的热应力分布情况如图14所示。与气体压力、唇形密封圈及O形圈摩擦力矩叠加后的热固耦合应力分布如图15所示。由图13和图14可知,阀瓣通气孔处温度高且温度分布不均匀,此处热应力较大,最大值为234.47 MPa;上下阀杆温度较低且温度分布均匀,此处产生的热应力较小。简单而言,阀芯阀杆材料受热膨胀影响,在温度较高的区域产生拉应力;另一方面,高温区域的材料受气体压力作用产生了压应力,因此高温区域的材料既受到热应力的拉作用又受到机械应力的压作用,两者部分相互抵消。由图14和图15对比可知,热应力叠加机械应力相比热应力单独作用,其最大应力值有所下降。

图14 阀芯阀杆组件热应力分布云图

图15 阀芯阀杆组件热固耦合应力分布云图
4.3 阀体温度及应力分布
通过有限元计算可得阀体温度分布情况,温差应力分布如图16所示。阀体内侧叠加流体压力,得到热固耦合下的应力云如图17所示。
参考王志文《化工容器设计》中高温厚壁圆筒理论分析和陈时健等研究可知,高温区域的热应力表现为拉应力,低温区域的热应力表现为压应力。由于最大应力往往在高温区域,由图16和图17可知,阀体内部高温区域热应力值最大且为拉应力,叠加机械应力,其值部分相互抵消,最大值有所下降;在阀体外部低温区域,其值为压应力,叠加机械应力,其值有所升高。

图16 阀体热应力分布云图

图17 阀体热固耦合下应力分布云图
5 结语
针对高温高压超快脉冲控制阀系统,本文主要研究了以下四方面内容:第一,提出一种全新的高温高压超快脉冲阀的设计方案,通过无极调速电机带动阀杆和阀瓣组合体高速旋转,利用阀瓣和阀座孔的重合度变化实现60 Hz脉冲效果;第二,密封副选用耐冲刷材料,通过人工和智能控制密封副间隙,使泄漏率达到5‰的理想水平;第三,阀瓣和阀杆之间采用一体化设计,减少了装备误差导致的性能波动风险,并设计三层四体加旋转的复杂而有效的水冷却结构,有效解决了高温环境下阀门部件的热应力问题,提高了系统稳定性和使用寿命;第四,整个阀门系统的运行逻辑由PLC控制系统实时监控,通过调节电机转速,精准控制阀瓣的转速变化,从而实现气流的快速开启和关闭,达到预想的脉冲效果。此外,通过实时数据融合与自主决策的智慧控制系统,在线生成流道理论上的温损/压损基准曲线。同步运行预测性维护引擎基于LSTM时序模型分析数据,预警密封副磨损或流道堵塞风险,实现从被动检测到主动调控的跨越。
总体而言,该设计框架充分体现了高温高压超快脉冲控制阀在功能性、可靠性和智能化方面的综合优势。该阀门的成功研制为其在多个领域的广泛应用奠定了坚实基础。在航空航天领域,该阀门可用于火箭发动机地面试验系统中的燃气流量调节,其高频脉冲特性能够精确模拟发动机启动和关机过程中的动态流量变化。在石油化工行业,该阀门可应用于高温高压反应器的流体控制系统,特别是在需要快速切换或调节流量的工艺环节中。
综上所述,该阀门不仅在传统领域具有广阔的应用前景,还将在新兴领域展现其独特价值,为推动相关行业的技术进步做出重要贡献。
*本文节选自《阀门 · 学术版》2026年第2期,文章内容不代表《阀门》立场,如有不同观点,可以留言讨论,友好交流,共同进步。